武蔵野市N様邸家具リメイク造作&内装工事
制作 /
所在地 /
事業主 /
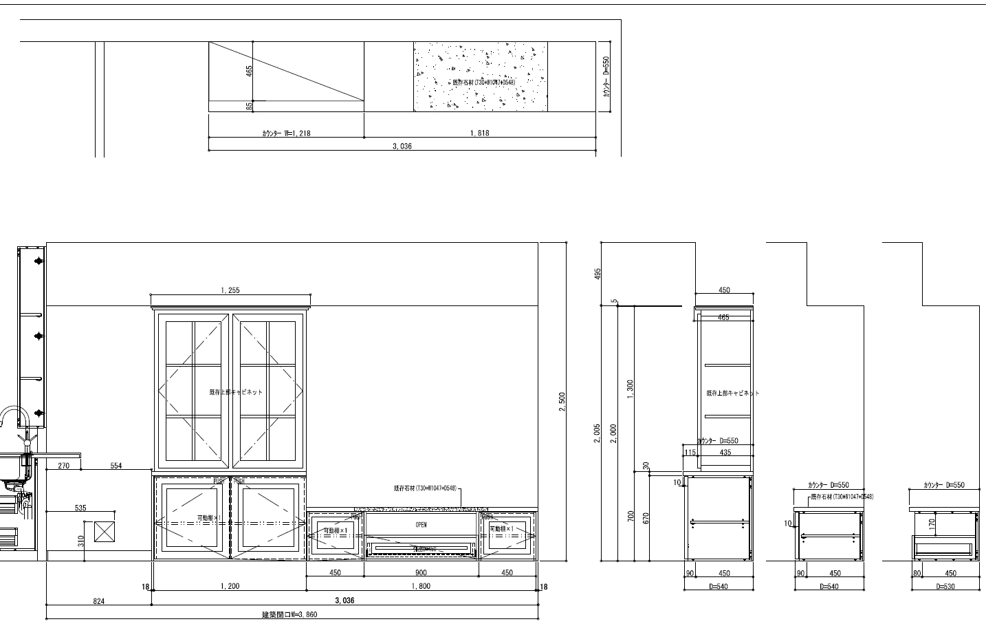
新築マンションのご入居時に、海外生活で持ち帰った思い出の家具を加工し、
リメイクしてリビングボードに仕立て直しました。
アクセントクロス、カーテン、照明工事も合わせて行いました
■造作家具:メラミン化粧板・ウレタン塗装
■アクセントクロス貼替
■照明
■カーテン工事
施工前
施工中
施工後
